ревуцкого 54б

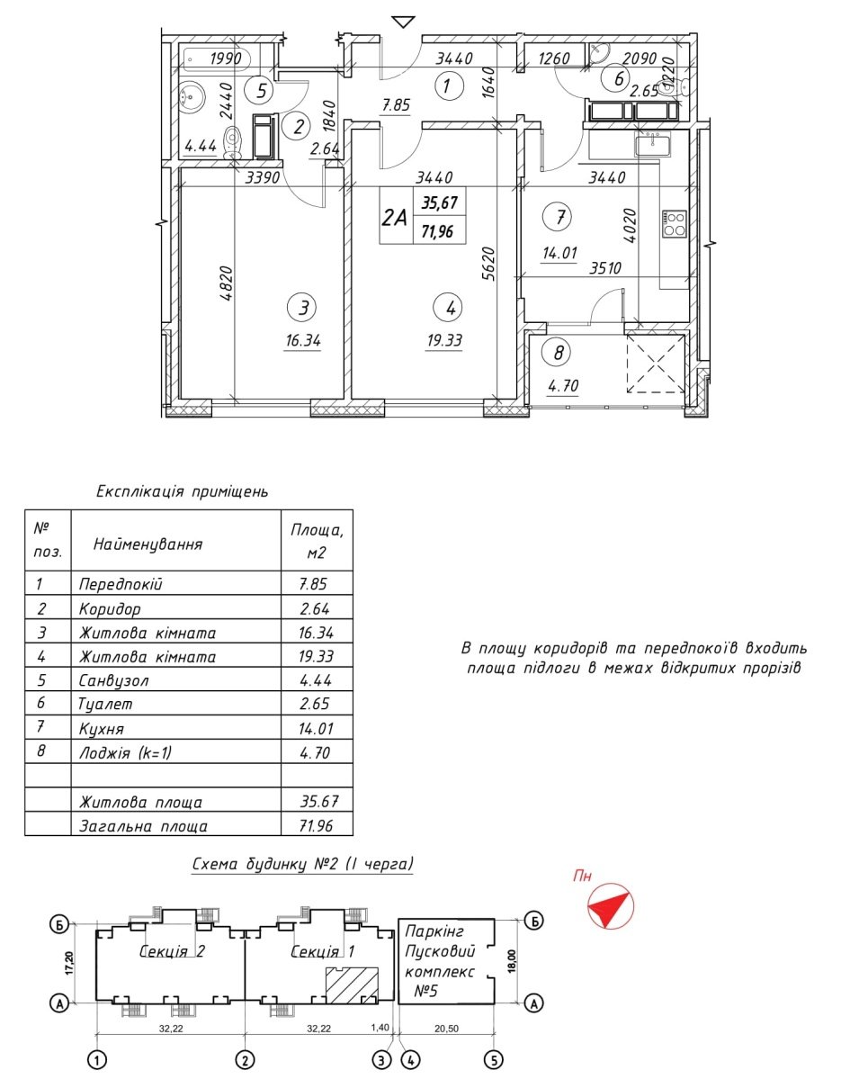
2 кімнати, площа 72 / 36 / 14, поверх 19 з 25

ID оголошення: 842

91 500 USD

1 271 USD/m²

vip
квартира
Вторинний ринок
2
72 м²
36 м²
14 м²
19
25

Чудова, світла двокімнатна квартира, з видом на озеро, в 15 хвилинах від м. Харківська. Квартира розташована на 19 поверсі, вікна виходять на південно-східну сторону - озера та безкрайні краєвиди!

Квартира має дуже вдале планування: дві просторі кімнати – 19м та 16м, кухня – 14м, лоджія - 5м та два санвузли. Це другий будинок в ЖК, він має два підїзди, квартира в другому. Будинок має залізобетонні стіни утеплені вентильованим фасадом, які ефективно зберігають тепло стін взимку та захистити їх від нагрівання влітку. Будинок - спецпроект, підвищеного комфорту, він має автономну котельню, що забезпечить стабільне постачання тепла навіть у холодні дні;

Комплекс розташований в пішому доступі від станції метро Харківська, але віддалений від проїжджої частини проспекту Миколи Бажана. Активна забудова Дарницького району посприяла розвитку інфраструктури: поруч школи, дитячі садки, супермаркети, ТРЦ та зупинки громадського транспорту, на якому можна виїхати в будь-яку іншу частину Києва.

У квартирі зроблений якісний ремонт: нова мідна проводка з якісною словенською автоматикою, сантехніка із застосуванням прес фітингів та трубопроводів Valtec, скління балконів – вікна Rehau з двокамерними склопакетами, ламінат krono original, натяжні стелі з матеріалу від виробника у Франції, освітлення повністю світлодіодне. У квартирі виконана підготовка під встановлення трьох кондиціонерів, встановлено бойлер, повністю обладнані обидва санвузли та кухня, вся меблева фурнітура з доводчиками від blum. На кухні є якісна, вбудована техніка: посудомийна машина, холодильник, електрична варильна поверхня, духова шафа, вбудована мікрохвильовка та витяжка. Квартира вже має все необхідне, а для переїзду Вам залишається лише визначиться з матрацом!