Київ
Змінити параметри пошуку Скинути фільтри
0 0 0
Вхід та реєстрація
Меню
  • Вибір мови
    Вибір мови
    • Русский
    • Українська
    • Вибрати
  • Вхід та реєстрація
  • Вибрані оголошення0
  • Коментарі до оголошення0
  • Контакти
  • Як додати оголошення
R24 / Купити комерційну нерухомість / Київ
  • Купівля
  • Нова будівля
  • Купівля Вторичка
  • Оренда
  • Подобово
  • Квартира
  • Будинок
  • Ділянка
  • Офіс
  • Торгівельний майданчик
  • Кафе
  • Гараж
  • Виробниче приміщення
  • Приміщення
  • Готель
  • Готовий бізнес
Фільтр
  • Розташування
  • Кількість кімнат
  • Ціна
  • Площа
  • Поверх
  • Обрати
Розташування
Кількість кімнат
Ціна
від
до
uah
  • usd
Площа
Почніть вводити назву міста
від м2
до м2
Житлова площа
від м2
до м2
Площа кухні
від м2
до м2
Поверх
від
до
фільтри
Київ

Купити комерційну нерухомість в Києві

  • Квартира
  • Будинок
  • Ділянка
  • Офіс
  • Торгівельний майданчик
  • Кафе
  • Гараж
  • Виробниче приміщення
  • Приміщення
  • Готель
  • Готовий бізнес
від м²
до м²
Загальна площа, м²
від сот
до сот
Загальна площа, сот
Ціна від
UAH
EUR
USD
Ціна до
UAH
EUR
USD
  • Загальна площа
    —
    Житлова площа
    —
    Площа кухні
    —
    Площа ділянки
    —
    Поверх
    —

Знайдено оголошень: 12
Відображати
всі
  • Всі
  • Сьогодні
  • Вчора та сьогодні
  • Тиждень
  • Місяць
  • Квартал
  • Півроку
  • Рік
Сортувати
за рейтингом
  • За рейтингом
  • Спочатку дешевше
  • Спочатку дорожче
  • За кількістю кімнат
  • За датою додавання
Саксаганского ул., 67
В обране Замітки Поскаржитися

320 000 USD 2 133 USD/кв.м

площа 150 , поверх 1

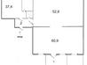
AV 2 4 8 7 6 1 6 Продаж комерційного приміщення вул. Саксаганського. Приміщення загальною площею 150 кв.м., розташовано на 1 поверсі 4 поверхового «Царського» будинку. Складається з двох залів 61 і 53 кв.м., приміщення 37 кв.м., санвузол. Електрична потужність 45 кВт. Гарний стан, капітальний ремонт, великі стелі, вікна. Фасад, два входу – центральний та під'їзд Місце для паркування.

16.08.2023 о 10:00 на avangards.com.ua

Консультант агенції

Агентство нерухомості

320 000 USD 2 133 USD/кв.м

Детальніше
Саксаганского ул.
В обране Замітки Поскаржитися

5 000 000 USD 3 014 USD/м.кв.

1 кімната , площа 1659 , поверх 1

0%

БЕЗ КОМІСІЇ! Продаж окремої будівлі 1659 м2 в Центрі (Голосіївський район, вул. Саксаганського). П'ятиповерхова будівля зі своєю територією, двома гаражами, власним паркуванням. Планування кабінетне. Стан після косметичного ремонту. Висота стелі 2,7м + перекриття під вентиляцію см 30-35. Земля орендується із 1980 року. Кондиціювання: спліт-система. Пожежна, охоронна сигналізація. Система відеоспостереження. Опалення централізоване (є лічильник). Потужність електромережі 216 квт. Своя огороджена територія. На вікнах ролети. Піша доступність метро Університет.

24.03.2026 о 10:00 на Alan

AlaN real estate

Агентство нерухомості

5 000 000 USD 3 014 USD/м.кв.

Детальніше
Саксаганского ул.
В обране Замітки Поскаржитися

320 000 USD 2 133 USD/кв.м

площа 150 , поверх 1

AV 2 4 8 7 6 1 6 Продаж комерційного приміщення вул. Саксаганського. Приміщення загальною площею 150 кв.м., розташовано на 1 поверсі 4 поверхового «Царського» будинку. Складається з двох залів 61 і 53 кв.м., приміщення 37 кв.м., санвузол. Електрична потужність 45 кВт. Гарний стан, капітальний ремонт, великі стелі, вікна. Фасад, два входу – центральний та під'їзд Місце для паркування.

13.11.2024 о 10:00 на avangards.com.ua

Гейко Валерія

Агентство нерухомості

320 000 USD 2 133 USD/кв.м

Детальніше
Саксаганского ул.
В обране Замітки Поскаржитися

320 000 USD 2 133 USD/кв.м

площа 150

Продається приміщення під магазин/салон. Повноцінний перший поверх (не цоколь), свій ганок, є місце для паркування. Складається з двох суміжних просторих залів (61м та 53м) та внутрішнього приміщення (37м), відокремленого залізними дверима. 1 санвузол. Електрика 3 по 15 квт. Є 2 входи – з фасаду та з під'їзду.

02.04.2024 о 00:00 на kn-dom.com.ua

Офіс менеджер

Агентство нерухомості

320 000 USD 2 133 USD/кв.м

    Фото немає
Детальніше

показано 4 оголошення з 12 на 1 сторінці

  • 1

Читати більше Згорнути
  • Райони
  • Мікрорайони
  • Вулиці
  • Метро
  • Соломянський
  • Святошинський
  • Голосіївський
  • Деснянський
  • Дарницький
  • Оболонський
  • Дніпровський
  • Подільський
  • Шевченківський
  • Печерський
  • Липки
  • Лукянівка
  • Печерськ
  • Нова Забудова
  • Оболонь
  • Поділ
  • Солом’янка
  • Чоколівка
  • Шулявка
  • Масив Печерської автостради
  • Маршала Гречка
  • Північно-Сирецька
  • Дегтярівська
  • Кирилівська
  • Академіка Заболотного
  • Жилянська
  • Кіровоградська
  • Саксаганського
  • Воздвиженська
  • Антоновича
  • Набережно-Рибальська
  • Перемоги
  • Шулявська
  • Контрактова площа
  • Лук'янівська
  • Вокзальна
  • Лівобережна
  • Олімпійська
  • Осокорки
  • Золоті ворота
  • Позняки
  • Сирець

© R24 Всі права захищені visa mastercard

  • Контакти
  • Наші партнери
  • Оферта
  • Політика конфіденційності
  • Співпраця і реклама
  • Угода користувача
  • Блог

Оферта на надання довідково-інформаційних послуг у сфері пошуку нерухомості

Політика конфіденційності

Угода користувача

Ви вже підписані на дану розсилку .

Замітка до оголошення

Текст замітки буде видно тільки вам

Скарга на оголошення

Ваша скарга відправлена.
Дякую за допомогу, ми перевіримо оголошення
Дякуємо за підписку
Перевірте вашу пошту для активації розсилки
  • увійти на сайт
  • Зареєструватися
  • Відновити пароль


Ви АН, портал і хочете додавати оголошення автоматично через XML-фід?
Реєстрація не потрібна. Просто надішліть фід нам на пошту: [email protected]
Хочете додавати VIP оголошення? - зареєструйтеся


В полі нижче введіть адресу електронної пошти, яка була зазначена при реєстрації. На неї буде надіслано новий пароль




На вказану адресу електронної пошти було надіслано секретний код. Введіть його в поле, розташоване нижче



Введений код успішно підтверджений.
Тепер ви можете вказати новий пароль для свого акаунта.




Вибір міста для пошуку